[請益] 22年老屋網路請益
各位前輩大大好!
最近小弟和太太購入22年老屋,家裡是用中華電信500M,因只有找水電師傅幫忙拉線,網路
走線就要自己規劃,牆壁內部網路線會換成Cat 6a,主臥室會有兩台電腦,那邊有請水電師
傅幫忙開1個網路孔,因弱電箱在大樓走道外,如果中華電信牽線拉進來出孔在客廳,我是不
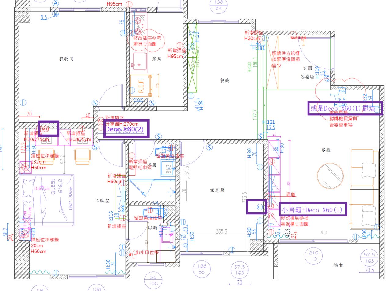
是不一定要把小烏龜裝在主臥室電腦旁呢??因為有規劃買兩台Deco X60,一台放在走道(De
co X60(2))一台放在客廳電視旁(Deco X60(1))或是對講機旁邊(Deco X60(1)),怎麼接法
會全屋跑滿速呢??還有一個問題是我爬文有些人會說小烏龜橋接給Deco X60(1)讓這台變
主要,請問有需要嗎??因為有點不懂橋接意思
小弟有想如下接法不知道可不可行
https://i.mopix.cc/eYWHQP.jpg

如下是小弟的室內圖
https://i.mopix.cc/gfCZRX.jpg

--
※ 發信站: 批踢踢實業坊(ptt.cc), 來自: 111.81.74.30 (臺灣)
※ 文章網址: https://www.ptt.cc/bbs/Fix-Network/M.1776150742.A.2F5.html
推
04/19 02:05,
3周前
, 1F
04/19 02:05, 1F
→
04/19 02:06,
3周前
, 2F
04/19 02:06, 2F
→
04/19 02:08,
3周前
, 3F
04/19 02:08, 3F
→
04/19 02:08,
3周前
, 4F
04/19 02:08, 4F
→
04/21 09:58,
2周前
, 5F
04/21 09:58, 5F
→
05/06 07:22,
5天前
, 6F
05/06 07:22, 6F
Fix-Network 近期熱門文章
PTT數位生活區 即時熱門文章